














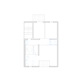
Berlin, 2023, 85 m²
Eine Wohnung soll durch Einbauten in ihrer Staufläche maximiert werden. Hierzu entsteht am Ende des Flurs eine beleuchtete, mit Spiegeln versehene Kammer. Im Eingangsflur selbst sammeln Schrankflächen aus reflektierenden Blechen das Licht, wodurch der Raum neben seiner Erschließungsfunktion eine sinnliche Umdeutung erfährt.
Der daran anschließende Wohnraum wird durch die Küche ergänzt. Geölter Baustahl und Holz stehen im Zeichen der häuslichen Arbeit. Ein ausziehbarer Tisch vermittelt zwischen den Aufenthaltsräumen Küche und Wohnzimmer. Alle Einbauten prägen durch Farbakzente ihren Kontext und gliedern die Wohnräume bzw. erweitern deren Nutzbarkeit.
Autor: Jakob Albrecht & Max Lewark.
Ausführung: Einbauschränke, Oberschränke Küche durch die Tischlerei Wust, Potsdam.
Badmöbel und Küchentisch durch die Tischlerei Dieken, Berlin.
Küchenzeile durch C. Linnenschmid, F. Bayer und Max Lewark.














Berlin, 2023, 85 m²
Eine Wohnung soll durch Einbauten in ihrer Staufläche maximiert werden. Hierzu entsteht am Ende des Flurs eine beleuchtete, mit Spiegeln versehene Kammer. Im Eingangsflur selbst sammeln Schrankflächen aus reflektierenden Blechen das Licht, wodurch der Raum neben seiner Erschließungsfunktion eine sinnliche Umdeutung erfährt.
Der daran anschließende Wohnraum wird durch die Küche ergänzt. Geölter Baustahl und Holz stehen im Zeichen der häuslichen Arbeit. Ein ausziehbarer Tisch vermittelt zwischen den Aufenthaltsräumen Küche und Wohnzimmer. Alle Einbauten prägen durch Farbakzente ihren Kontext und gliedern die Wohnräume bzw. erweitern deren Nutzbarkeit.
Autor: Jakob Albrecht & Max Lewark.
Ausführung: Einbauschränke, Oberschränke Küche durch die Tischlerei Wust, Potsdam.
Badmöbel und Küchentisch durch die Tischlerei Dieken, Berlin.
Küchenzeile durch C. Linnenschmid, F. Bayer und Max Lewark.